Breezes at Mackay

Mackay, Queensland

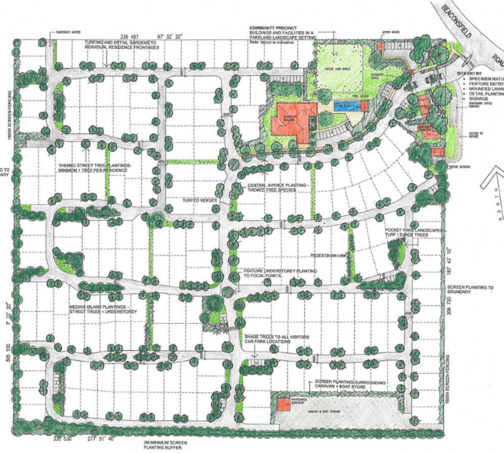
Subsequent to our development of a seniors rental accommodation village in Mackay, Stateland recognised the opportunity for the development of a broader seniors living community.

Thorough market and social research was undertaken and independent analysis confirmed that such a community would be a welcome addition to the residential fabric of the region.

 

Stateland secured a strategically located 10 hectare site in Mackay that was compatible with our stringent requirements and design philosophy for a seniors living community.

The site was master planned, Council approvals to achieve an appropriate use and density were obtained and various site issues were successfully resolved. A client then acquired the site and was immediately able to commence construction, without delay.